Lasita Maja Gartenhaus Belmont 2 - 34 mm
Lasita Maja Gartenhaus Belmont 2 - 34 mm
Das schicke Lasita Maja Gartenhaus Belmont 2 eignet sich ideal als Erweiterung oder Anbau an bestehende Gebäude. Es sind 4 Wände enthalten, das Gartenhaus Jura kann also auch freistehend aufgebaut werden.
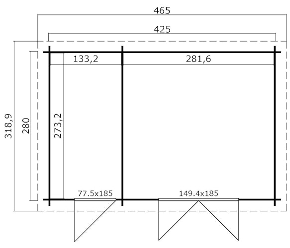
Grundfläche: 425 x 280 cm
Ausführung: naturbelassen
Das schicke Lasita Maja Gartenhaus Belmont 2 eignet sich ideal als Erweiterung oder Anbau an bestehende Gebäude. Es sind 4 Wände enthalten, das Gartenhaus Jura kann also auch freistehend aufgebaut werden.
Grundfläche: 425 x 280 cm
Ausführung: naturbelassen
Das schicke Lasita Maja Gartenhaus Belmont 2 eignet sich ideal als Erweiterung oder Anbau an bestehende Gebäude. Es sind 4 Wände enthalten, das Gartenhaus Jura kann also auch freistehend aufgebaut werden.
Grundfläche: 425 x 280 cm
Ausführung: naturbelassen
- Gartenhaus aus hochwertiger nordischer Fichte
- 2-Raum Haus
- inkl. Fussbodenbretter und imprägnierte Unterkonstruktion
- Grundfläche 11,43 m2
-
Sammeln
Sammeln Sie bei jedem Einkauf automatisch Münzen – jeder ausgegebene Euro entspricht 2 Münzen. Bei KÖMPF+ Produkten profitieren Sie doppelt!
-
Freischalten
Die gesammelten Münzen werden in Ihrem Kundenkonto vorgemerkt und nach Ablauf der Widerrufsfrist automatisch freigeschaltet.
-
Einlösen
Sparen Sie bei Ihrem nächsten Einkauf! Setzen Sie 100 Münzen ein, um 1 € zu sparen – bis zu 25 % des Warenkorbs sind anrechenbar.
-
Aufgaben abschließen
Schließen Sie einmalige oder wiederkehrende Aufgaben ab und bringen Sie Ihre Schwarzwaldtanne zum wachsen! Durch das erstellen Ihres Kundenkontos starten Sie bei 100 cm.
-
Wachstum beobachten
Schauen Sie zu, wie Ihre persönliche Schwarzwaldtanne in die Höhe klettert. Ebene für Ebene und vielleicht sogar darüber hinaus.
-
Vorteile genießen
Mit Ihrer Tanne wachsen auch Ihre exklusiven KÖMPF24-Vorteile. Vom Geburtstagsgutschein bis zum persönlichen Premium-Service – dauerhaft!
Lasita Maja Gartenhaus Belmont 2
- Grundfläche: 425 x 280 cm
- Ausführung: naturbelassen (Fichte)
- Wandstärke: 34 mm
- Inkl. Montagematerial
- Dachpappe und Fußboden im Lieferumfang enthalten
- Doppeltür mit Plexiglas versehen
| Wandstärke | 34 mm |
| Nutzfläche | ≈ 11,43 m² |
| Rauminhalt | ≈ 24,1 m³ |
| Dachstand | 4,65 x 3,19 m |
| Dachfläche | ≈ 14,88 m² |
| Seitenwandhöhe | ≈ 2,00 m |
| Firsthöhe | ≈ 2,22 m |
| Vordach | ≈ 28 cm |
| Fenster & Türen | 1 Doppeltür, 149 x 185 cm 1 Einzeltür, 77 x 185 cm |
| Dachbretter | 15 mm |
| Dachwinkel | ≈ 5,3 ° |
| Packmaße | 630 x 118 x 52 cm, 932 kg |
| Ausführung | Naturbelassen |
| Imprägnierte Unterkonstruktion | 45 x 45 cm |
| Bedarf an Dachpappe | Inklusive |
| Dachrinnenbedarf | Kunststoff Dachrinnenset mit Fallrohren (optional erhältlich - siehe Reiter "Zubehör") |
| Montage | Montage zum günstigen Festpreis möglich oder Sorglos-Paket mit Montage und besonderen Service-Leistungen zum Festpreis Weitere Informationen |
Optionale Erweiterungen (siehe Reiter "Zubehör"):
- Dachrinne
Den Grundrissplan dieses Gartenhauses finden Sie oben in der Bilderleiste am rechten Rand.
Möchten Sie Hinweise zur Vorbereitung der Stellfläche und der Fundamenterstellung? Hier informieren
Statikpläne zur Einreichung bei Behörden erhalten Sie sehr gerne auf Anfrage. Schreiben Sie uns hierzu bitte einfach eine kurze E-Mail über unser Kontaktformular: Kontakt
Ebenfalls bieten wir Ihnen Tipps für die einfache und reibungslose Montage Ihres Gartenhauses an. Hier informieren
Möchten Sie die Montage Ihres neuen Gartenhauses lieber einem Profi überlassen?
Wir bieten Ihnen unseren kompetenten und bundesweiten Montageservice zum Festpreis an. Wählen Sie dafür die Option "inkl. Montage" aus. Der Preis beinhaltet die Montage des kompletten Hausbausatzes, ohne optionales Zubehör. Möchten Sie Ihre Zubehörteile ebenfalls montieren lassen, wählen Sie bitte beim entsprechenden Zubehör ebenfalls die Option "inkl. Montage".
Profitieren Sie von unserem besonderen Service: dem Sorglos-Paket für die Anlieferung und Montage Ihres Gartenhauses
√ Kein lästiges Schleppen der Pakete zum Montage-Ort
√ Kein Überprüfen der Einzelteile
√ Keine Zwischenlagerung bis zur endgültigen Montage
√ Keine unnötigen Urlaubstage für die Anlieferung und Montage
Unser Sorglos-Paket macht es möglich! Nähere Informationen
Möchten Sie weitere Informationen zu den Montagebedingungen? Hier informieren
Im Lieferumfang enthalten:
- 28 mm starke Wandbohlen
- 1 Doppeltür
- 1 Einzeltür
- 15 mm Dachbretter
- Dachpappe und Fußboden
- Montagematerial
- Ausführliche und leicht verständliche Aufbauanleitung
Unser Lieferservice bringt Ihnen Ihr neues Gartenhaus bis an Ihre Bordsteinkante. Die Lieferung erfolgt mit einem großen 40 Tonnen-LKW. Daher ist es notwendig, dass der Anfahrtsweg zu Ihrer Lieferadresse für einen solchen LKW befahrbar ist.
- Sturmanker inkl. aller benötigten Schrauben
- Feuchtigkeitspads als Schutz der Fundamenthölzer
- Selbstklebend
- Ideal für alle Flachdächer
- Schutz für mindestens 10 Jahre
- Komplettset für professionellen Anstrich
- Ersparnis ggü. Einzelkauf: ca. 10%
- Wunschfarbe individuell wählbar
- Komplettset für professionellen Anstrich
- Ersparnis ggü. Einzelkauf: ca. 10%
- Wunschfarbe individuell wählbar
- Einfache Montage
- Punktgenaue Entwässerung des Daches
- Anschluss von Regentonne oder Zysterne möglich
- Vermindert das Quellen und Schwinden des Holzes
- Ideale Grundierung
- Auf Basis nachwachsender Rohstoffe
- Schützt das Holz vor Witterungseinflüssen
- Kein Schleifen notwendig (bei gesäuberter Oberfläche)
- Deckend oder transparent erhältlich
- Optimaler Schutz
- Optimale Ergänzung für Gartenhäuser ohne Fenster
- Beugt einem Hitzestau vor
- Verhindert Schimmel
- Schutz gegen aufsteigende Nässe
- Fördert die Luftzirkulation
- Feuchtigkeitsunemfpfindlich
Bewertungen von Kunden, die ihre Ware nicht bei uns gekauft haben, werden entsprechend gekennzeichnet.
Mit dem Absenden des Kontaktformulars stimmen Sie der Verarbeitung Ihrer Daten durch uns zu. Hier finden Sie unsere Datenschutzbestimmungen.
Sie können die erste Person sein, die zu diesem Produkt eine Bewertung schreibt.
Sie können der erste Kunde sein, der zu diesem Produkt eine Frage stellt. Wir freuen uns auf Ihre Frage.
Wenn Sie Fragen zu Ihrer Bestellung oder zur Verfügbarkeit des Artikels haben, schreib Sie uns über das Kontaktformular.



